Garden Design
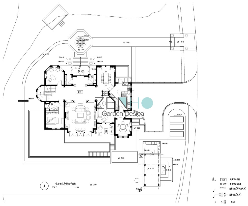
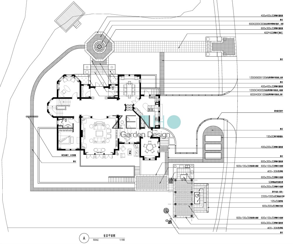
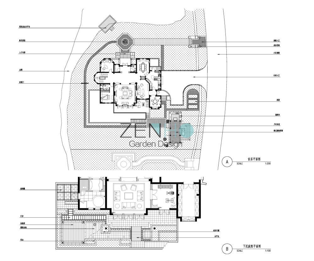
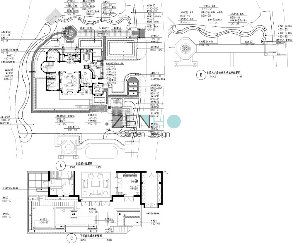
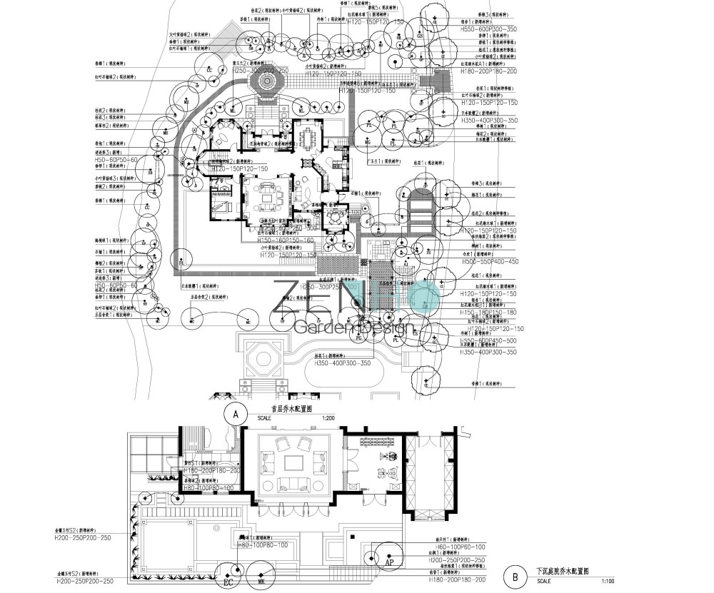
景观设计施工图案例展示具体内容包括: Ⅰ、为硬、软景施工提供详图的全套设计图纸。 Ⅱ、协助甲方编制硬景、软景工程精度安排。 Ⅲ、提供景观工程造价概算。 Ⅳ、按设计周期要求提交下列详图的硬景设计文件,供施工之用。包括: ·硬质景观详图和施工图(包括各园林小品的立面图/剖面图,重点铺装图,详细的园景节点大样图、结构图等); · 景观指引图及定位图;· 标高设计图;· 局部平面图和剖面图;· 地面排水及灌溉图;· 照明图;· 水、电施工图; · 软景元素包括以下内容:乔木和灌木;草地和地被植物;土方工程的斜坡等;特殊的排水要求;特殊的移植规范和图则。 · 制备及编制材料表,植物表及有关的工料规范。


































